BUNGALOW 007 je jednopodlažný rodinný dom s moderným dizajnom a plochou strechou je ideálnym riešením pre pohodlné bývanie. Dom je bez podpivničenia, no ponúka dostatok priestoru pre 4-5 člennú rodinu s praktickým riešením. Je vhodný do rovinatého, prípadne mierne svahovitého terénu.
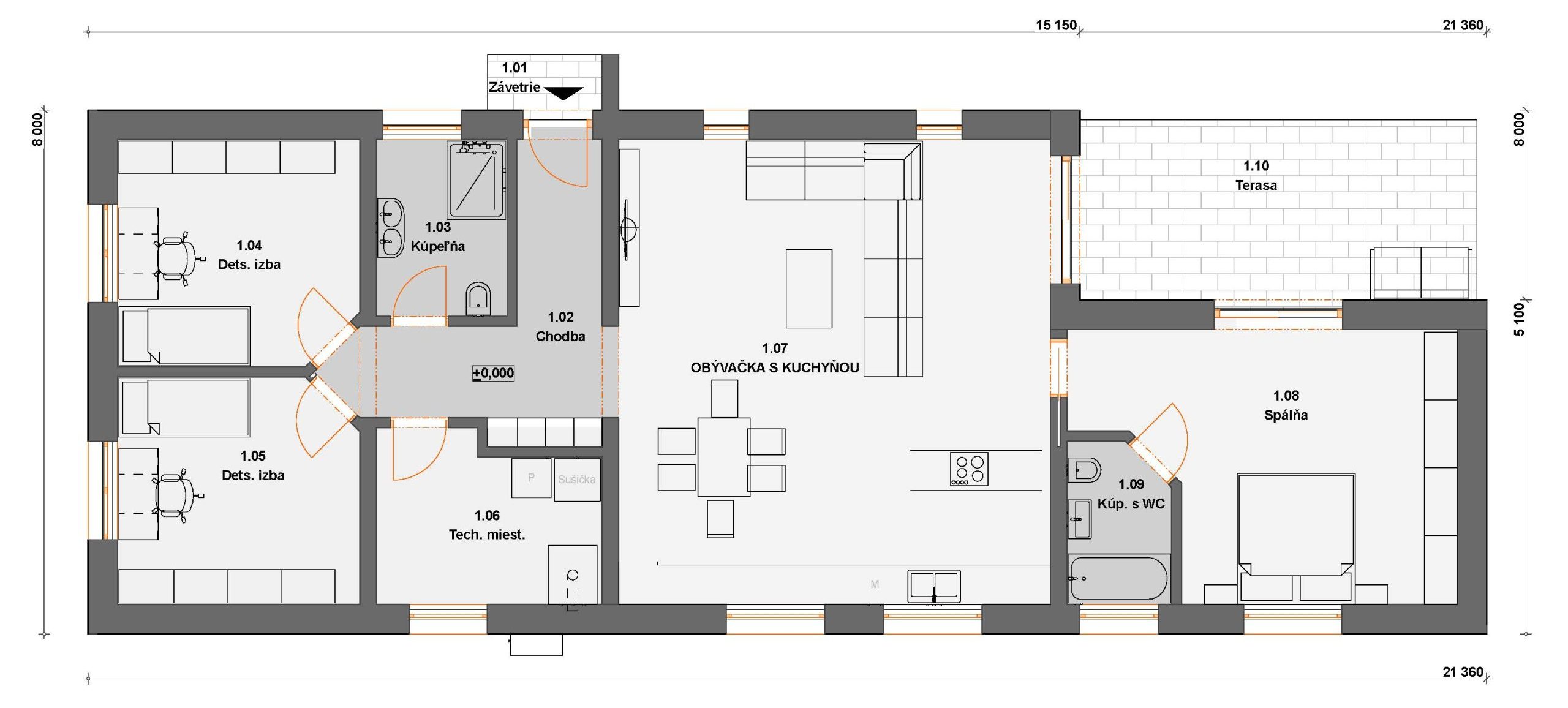
Súčasťou domu je priestranná kuchyňa s jedálňou, ktorá je prepojená s obývačkou, čo vytvára príjemný otvorený priestor pre spoločné chvíle s rodinou a priateľmi. Spálňa má vlastnú kúpeľňu a WC, čo zaručuje maximálne súkromie a komfort. Ďalej sa v dome nachádzajú dve detské izby, ktoré sú ideálne pre rast a rozvoj detí, ako aj samostatná kúpeľňa s WC, čo zaisťuje pohodlie pre celú rodinu. Technická miestnosť poskytuje dostatok miesta pre skladovanie a technické zariadenie. Chodba spája všetky miestnosti a zabezpečuje plynulý pohyb po dome.
Dom je vybavený aj terasou, ktorá je prístupná z obývačky aj zo spálne, čím ponúka príjemné miesto na relaxáciu a užívanie si vonkajšieho prostredia. V prípade záujmu sa dá k domu pristaviť garáž, alebo prestrešené státie na auto.
Tento dom je ideálnym miestom na bývanie pre modernú rodinu, ktorá hľadá komfort, praktickosť a estetický vzhľad.
V projekte sú navrhnuté klasické stavebné materiály: steny z keramických pálených tehál, prípadne tvárnic, strop tvorí sadrokartónový podhľad a plocha strecha je hydroizolačnej fólie FATRAFOL so zásypom s riečnym kameňom. V prípade želania investora možno urobiť zmeny na základe jeho požiadaviek.
počet osôb: 4-5
obytné miestnosti: 4
zastavaná plocha: 162,16m2
podlahová plocha: 111,72m2
obytná plocha: 92,94m2
výška atiky: 3,8m
sklon strechy plochá strecha: 2°
garáž: nie
energetická náročnosť: A0
Ak ste nenašli projekt, ktorý by vyhovoval vašim predstavám, radi vám pomôžeme. Navrhneme vám dom presne podľa vašich potrieb a požiadaviek, alebo upravíme už existujúci projekt tak, aby dokonale zodpovedal vašim predstavám. Stačí nás kontaktovať – cez telefón na čísle 0903 586 751, pomocou online chatu alebo vyplnením kontaktného formulára.
Individuálny prístup a realizácia
Dohodneme si stretnutie podľa vašich možností, pozorne si vypočujeme vaše predstavy a pripravíme návrh, ktorý bude 100% váš. Sme tu preto, aby sme váš budúci domov nechali vzniknúť presne podľa vašich predstáv – od prvého náčrtu až po realizáciu.
Copyright © realet all rights reserved.
Rozpočtovanie v stavebnom odvetví je kritickým procesom, ktorý zahŕňa odhadovanie a plánovanie nákladov spojených s realizáciou stavebného projektu. Správne vypracovaný rozpočet umožňuje efektívne riadenie finančných zdrojov a minimalizuje riziká prekročenia nákladov. Tu sú niektoré dôležité aspekty rozpočtovania v stavebnom odvetví:
Správne rozpočtovanie je nevyhnutným krokom pri riadení stavebných projektov, pomáhajúcim zabezpečiť, že projekt bude dokončený včas, v stanovenom rozpočte a s požadovanou kvalitou.
Financovanie v stavebnom obore zahŕňa získavanie a správu finančných prostriedkov potrebných na realizáciu stavebných projektov. Tento proces môže zahŕňať financovanie nielen samotnej výstavby, ale aj prípravných prác, nákupu pozemkov, projektovania a iných súvisiacich činností. Financovanie je kľúčovým aspektom v stavebnom odvetví, kde sú obvykle veľké náklady a dlhodobé záväzky. Tu sú niektoré dôležité aspekty financovania v stavebnom odvetví:
Správne riadenie finančných aspektov je kľúčovým faktorom pre úspešné dokončenie stavebných projektov. Je dôležité mať jasné a transparentné finančné plánovanie, sledovanie výdavkov a pružnú schopnosť prispôsobiť sa zmien v priebehu projektu.
.